Презентация, доклад по истории искусства на тему Афинский акрополь.

Общий вид Акрополя

Слайд 1Афинский Акрополь

Афинский Акрополь

Слайд 5Общий вид Акрополя

Общий вид Акрополя

Слайд 8Пропилеи

Пропилеи

Слайд 9Храм Ники Аптерос

Храм Ники Аптерос

Слайд 10Статуя Афины

Статуя Афины

Слайд 13Статуя Афины Парфенос. Реконструкция.

Статуя Афины Парфенос. Реконструкция.

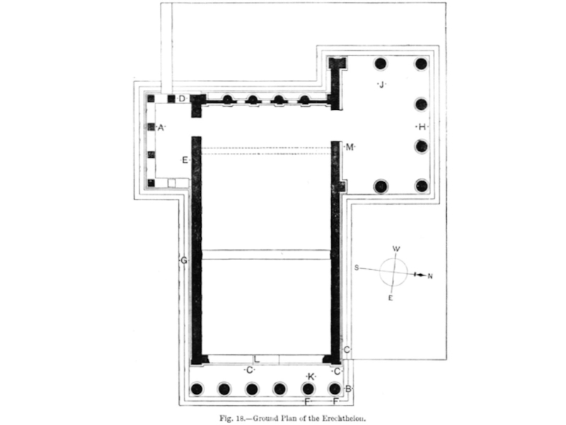
Слайд 17Эрехтейон

Эрехтейон

Слайд 18Эрехтейон

Эрехтейон

Слайд 19Эрехтейон

Эрехтейон

Что такое shareslide.ru?

Это сайт презентаций, где можно хранить и обмениваться своими презентациями, докладами, проектами, шаблонами в формате PowerPoint с другими пользователями. Мы помогаем школьникам, студентам, учителям, преподавателям хранить и обмениваться учебными материалами.


Для правообладателей

Яндекс.Метрика

Обратная связь

Email: Нажмите что бы посмотреть